
Location: Dublin
Status: February 2021, Ongoing
Client: Ballymore
Size: GIA 40,575 sq m / 322 residential units
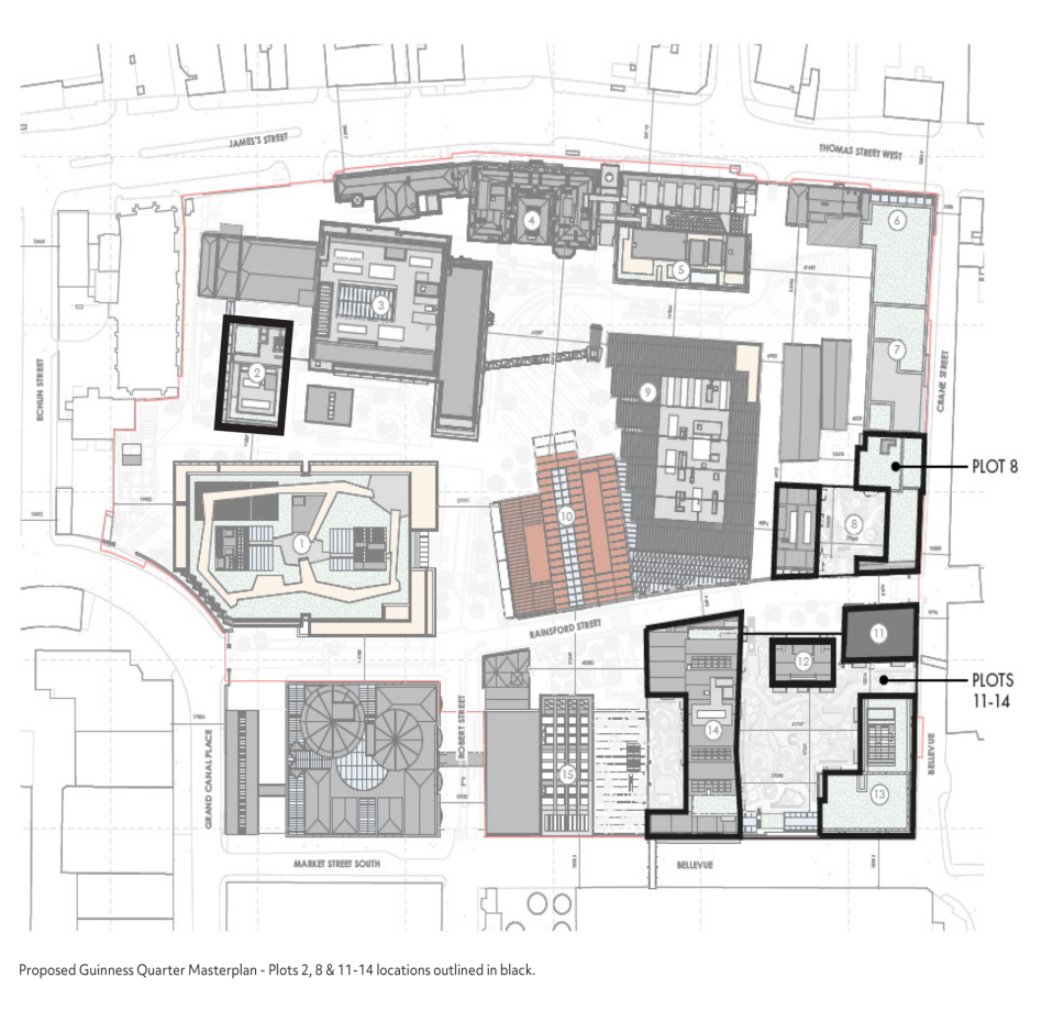
We were a part of wider team working within a masterplan prepared by Ballymore in collaboration with Diageo, bringing this vision to life by creating a seamless union of residential living, community, entrepreneurship, creativity, sustainability, commerce, culture and public space, while retaining the site's unique built heritage, complemented by the very best of carefully considered architecture and urban design.
The proposed buildings were sensitively shaped and designed by taking direction from the fabric, heights, massing and materiality of the existing brewery site and its environs.
Residential Plots 2, 8 and 11-14 comprise of 322 No. studio, 1, 2 and 3 bed apartments across 7 No. buildings.
The design strategy for Plots 8 and 11-14 was to provide a clear separation between the busy public realm at street level and the private realm.
Residential uses are located above street level and organized around sunny, south facing, podium level, courtyard gardens.
David O'Connell
Director
Mob: +353 (0)86 811 9238
Email: doconnell@mdo.ie
Dan Daye
Director
Mob: +353 (0)86 811 9244
Email: dandaye@mdo.ie